簡單,是終極的復雜。
Simplicity is the ultimate sophistication.
——達芬奇

繼空巢青年、佛系、隱性貧困人口……
這些標簽之后,新青年當中刮起新潮流:
極簡主義青年= =
在他們眼里,
穿衣只選剪裁得體有質感的衣服,
吃飯時全部心思全用在菜品的味道上,
理發無需托尼老師花式點評,
只選活好話少的。
面對日益高漲的房租房價,
極簡主義青年在家居空間中,
更是本著一切從簡,崇尚自由的思想,
旋即卡諾亞極簡生活系列也被眾人擁躉~
今天小卡分享一套極簡風家居裝修案例,
給空間做減法,讓家居承載豐滿的“空”
營造輕盈的生活,呼吸自由的空氣~
Come on,一起做一枚極簡青年
???
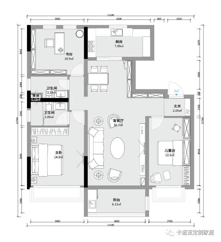
{戶型圖}
01門廳
銀絲木貼皮搭配LCT高亮光門板
顯示出別樣的尊奢
獨特的線條工藝增加了挺括的肌理感
使得空間具有超凡的氣質
設置一個到頂的玄關柜
中部放置一面鏡子,出入整理著裝儀容便捷
左邊封閉式收納柜與右邊開放格相結合
一藏一展,動靜皆宜
02餐廳
餐廳是質感的純白,符合極簡的設計理念
為喧囂的都市減壓,心情也變得輕舞飛揚 
餐邊柜與酒柜二合一,收納功能強大
嵌入式冰箱,更省空間、整體更統一
餐廳介于門廳、廚房之間
與廚房采用玻璃推拉門相隔
可隨時與下廚的人互動
客廳的主體基調為銀絲貼木
低調中暗藏光華
不經意間流露出主人的優雅品味 

靈動造型的藝術吊燈
打破簡約線條的單一感
呈現個性的美感
光影流動彰顯空間層次感
柔和溫暖的布藝沙發融化簡約的硬朗
高冷廚房彰顯高逼格氣場
銀絲木搭配高亮光LCT珍珠白門板,
讓廚房變成一個潔白的藝術空間
生活的高光點亮廚房的色香味 
05主臥
主臥以白色為主色調,深色為輔助色
加入灰色系的銀絲木
打造出品質高雅的極簡風格
到頂衣柜設置了玻璃柜門
空間通透更顯大 

寢具為純潔的白色,深色邊框修飾
看起來干凈舒適又耐品
奔波了一天的疲憊身軀
可以在這里得到溫柔的治愈 
06兒童房
兒童房有別于主臥的沉穩與冷靜
設計師有意用跳躍的橘黃色提升空間的活力
在與灰白的碰撞中綻放空間的創意
釋放孩子無窮的想象力
衣柜、書柜、書桌一體化
嵌入式床頭,不浪費一寸空間
靠墻定制一整排柜子
但并非單一的全封閉柜子
開放與封閉兼有,視覺立體不顯壓抑
讓空間即不缺失功能性
又充滿裝飾的趣味
07書房
每個家都需要一個極致書房
在一個屬于自我的空間里
閱一本喜愛的書籍,品一杯香濃的咖啡
此情此景何等愜意 
小時候快樂很簡單,長大了簡單即快樂
讓人靜心的慕尼黑及銀絲木花色
通透醒神的LCT珍珠白搭配玻璃門
簡單的色彩搭配,去繁化簡,減掉贅飾
讓你在繁復的工作之后
找到一個“減壓”的書房